Leave a Message

Thank you for your message. We will be in touch with you shortly.

1208 W Newport Avenue

$1,825,000
1208 W Newport Avenue, Chicago, IL 60657
1208 W Newport Avenue

1208 W Newport Avenue

$1,825,000

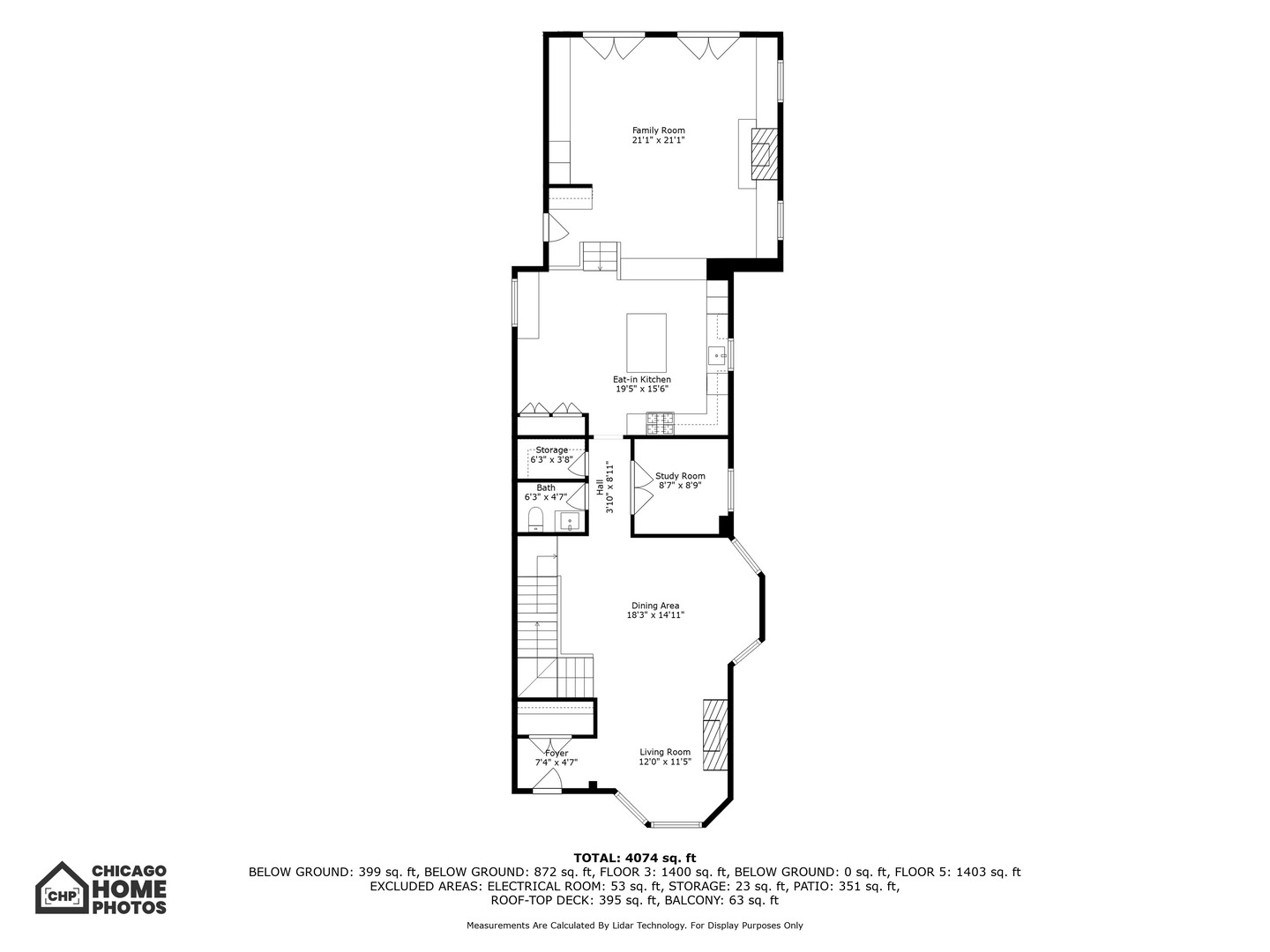
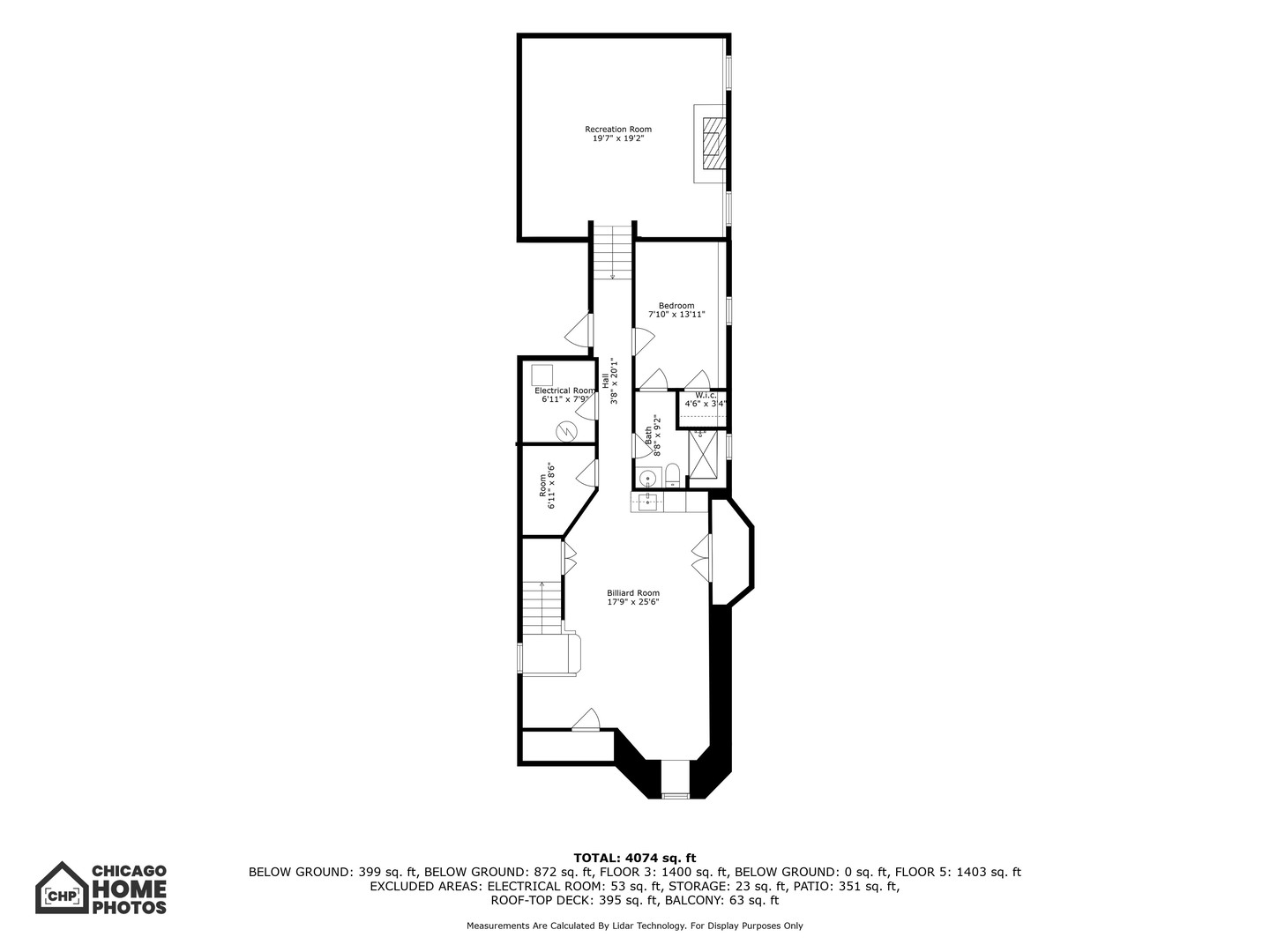
Welcome to 1208 Newport - situated in the desirable Southport Corridor. The gracious home sits on an oversized Chicago lot and features a fantastic floorplan. Entering the property you have a formal living space accented with a fireplace. The adjacent dining room is great for dinner parties or family gatherings. Discrete half bath on the main level as well as an office with French doors. Massive kitchen featuring high end appliances: Sub Zero, Wolf and Bosch. Tons of great storage and fantastic functionality for the home chef. Walk in Pantry and casual eating area as well. Kitchen opens up to a huge family room with walk out access to your patio and garage roof top deck featuring custom trellis and privacy fence. The 2nd level features 4 bedrooms. The front guest bedroom is ensuite with a gorgeous bathroom. Two additional Guest bedrooms are well sized and share a hall bathroom. Storage closets and a gracious laundry room on this level. The Primary suite is bright and spacious with dual closets. Luxury bath features heated floors, large walk in shower with glass enclosure, soaking tub and dual vanity. Stylish decor is featured throughout this home. The lower level has a game room with pool table and wet bar. Guest Bed 5 and a full bath in the lower level. A massive theatre room with fireplace accent completes this house. This house is sure to impress - show with confidence. Walkable to Southport Corridor, Wrigleyville, parks and transit.
Mike Gaffney
Mike Gaffney Contact

Features & Amenities

Interior

Total Bedrooms 5
Total Bathrooms 5
Full Bathrooms 4
Half Bathrooms 1
Laundry Room In Unit, Sink
Fireplace Gas Log, Gas Starter
Appliances Range, Microwave, Dishwasher, High End Refrigerator, Bar Fridge, Washer, Dryer, Disposal, Wine Refrigerator, Range Hood, Humidifier
Other Interior Features Bar-Dry, Bar-Wet, Hardwood Floors

Exterior

Garage Space 2.0
Water Source Lake Michigan
ROOF Asphalt, Rubber
Lot Features Fenced Yard, Landscaped
Heat type Natural Gas, Forced Air, Sep Heating Systems - 2, Indv Controls
Air Conditioning Central Air
Sewer Public Sewer
Substructure Concrete Perimeter
Other Exterior Features Balcony, Patio, Roof Deck

Area & Lot

Status Sold
MLS® ID 12266724
Type Residential
Neighborhood Lakeview
ELEMENTARY SCHOOL Hamilton Elementary School
MIDDLE SCHOOL Hamilton Elementary School
HIGH SCHOOL Lake View High School
School District 299

Financial

SALES PRICE $1,825,000
REAL ESTATE TAXES $25,108/yr
Lakeview

Lakeview

A “sports and spirits” energy that can go from day tonight.

Read more

WORK WITH US.

Dedicated to you. It has been always our mission to bring our clients home. Contact us today!

CONTACT US