Leave a Message

Thank you for your message. We will be in touch with you shortly.

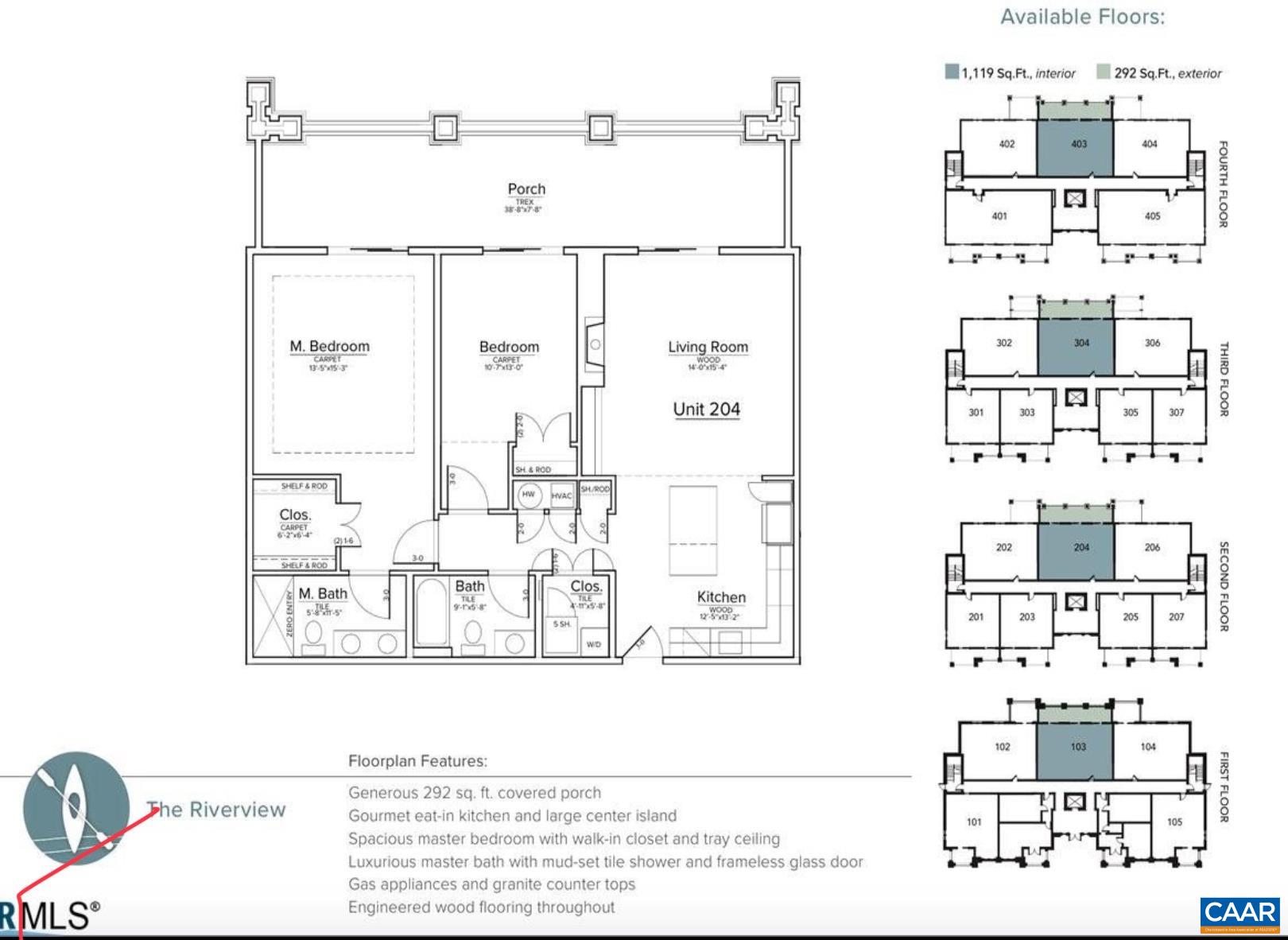
1425 TRAILSIDE CT Unit: 204

$535,000
1425 TRAILSIDE CT Unit: 204, Charlottesville, VA 22911
1425 TRAILSIDE CT Unit: 204

1425 TRAILSIDE CT Unit: 204

$535,000

Welcome to this stunning 2-bed, 2-bath condo in The River House Condos at Riverside Village, offering over 1,100 sq ft in an elevator building, this home boasts a rare, oversized covered terrace with views of the scenic Rivanna River. Step inside to find tall ceilings, rich wood floors, and abundant natural light. The stylish and highly functional kitchen features granite countertops, a spacious island with a breakfast bar, and gas cooking. The living room is warm and inviting, with a stone-detailed gas fireplace, built-in shelving, and direct access to the terrace--perfect for seamless indoor-outdoor living. The primary suite is a private retreat, complete with terrace access, a generous walk-in closet and a beautifully appointed bath with a double vanity and a walk-in shower. The second bedroom is equally spacious, with its own access to the terrace. A convenient in-unit front-load stacked washer and dryer add to the ease of everyday living. Energy-efficient home is EarthCraft-certified, offering keyless entry security, a fitness room, and fire pit. A solar canopy provides 1 covered parking space, wired for electric vehicle charging. An additional exterior parking space and guest parking is available
Mike Gaffney
Mike Gaffney Contact

Features & Amenities

Interior

Total Bedrooms 2
Total Bathrooms 2
Full Bathrooms 2
Laundry Room Stacked
Flooring Ceramic Tile, Wood
Fireplace Gas, Gas Log
Appliances Convection Oven, Dishwasher, Disposal, Gas Range, Refrigerator, Dryer, Washer
Other Interior Features Double Vanity, Primary Downstairs, Walk-In Closet(s), Breakfast Bar, Tray Ceiling(s), Eat-in Kitchen, Kitchen Island, Recessed Lighting

Exterior

Stories 1
Water Source Public
Utilities Cable Available, High Speed Internet Available
Heat type Electric, Forced Air, Heat Pump
Air Conditioning Heat Pump
Sewer Public Sewer
Substructure Block, Slab
Security Features Door Buzzer, Smoke Detector(s), Security Door

Area & Lot

Status Sold
LIVING SPACE 1,119 Sq.Ft.
TOTAL AREA 1,119 Sq.Ft.
MLS® ID 662217
Type Condo
Year Built 2016
ELEMENTARY SCHOOL Stone-Robinson
MIDDLE SCHOOL Burley
HIGH SCHOOL Monticello

Financial

SALES PRICE $535,000
REAL ESTATE TAXES $3,539/yr
HOA Fees $430/mo

WORK WITH US.

Dedicated to you. It has been always our mission to bring our clients home. Contact us today!

CONTACT US